Prinzenstraße 55

47475 Kamp-Lintfort

Wohneinheiten
15
Kernsanierung
2024
Firma
GK-Bau GmbH
Architektur Baustil Planung

Energiesparend und qualitätvoll leben in Kamp-Lintfort!

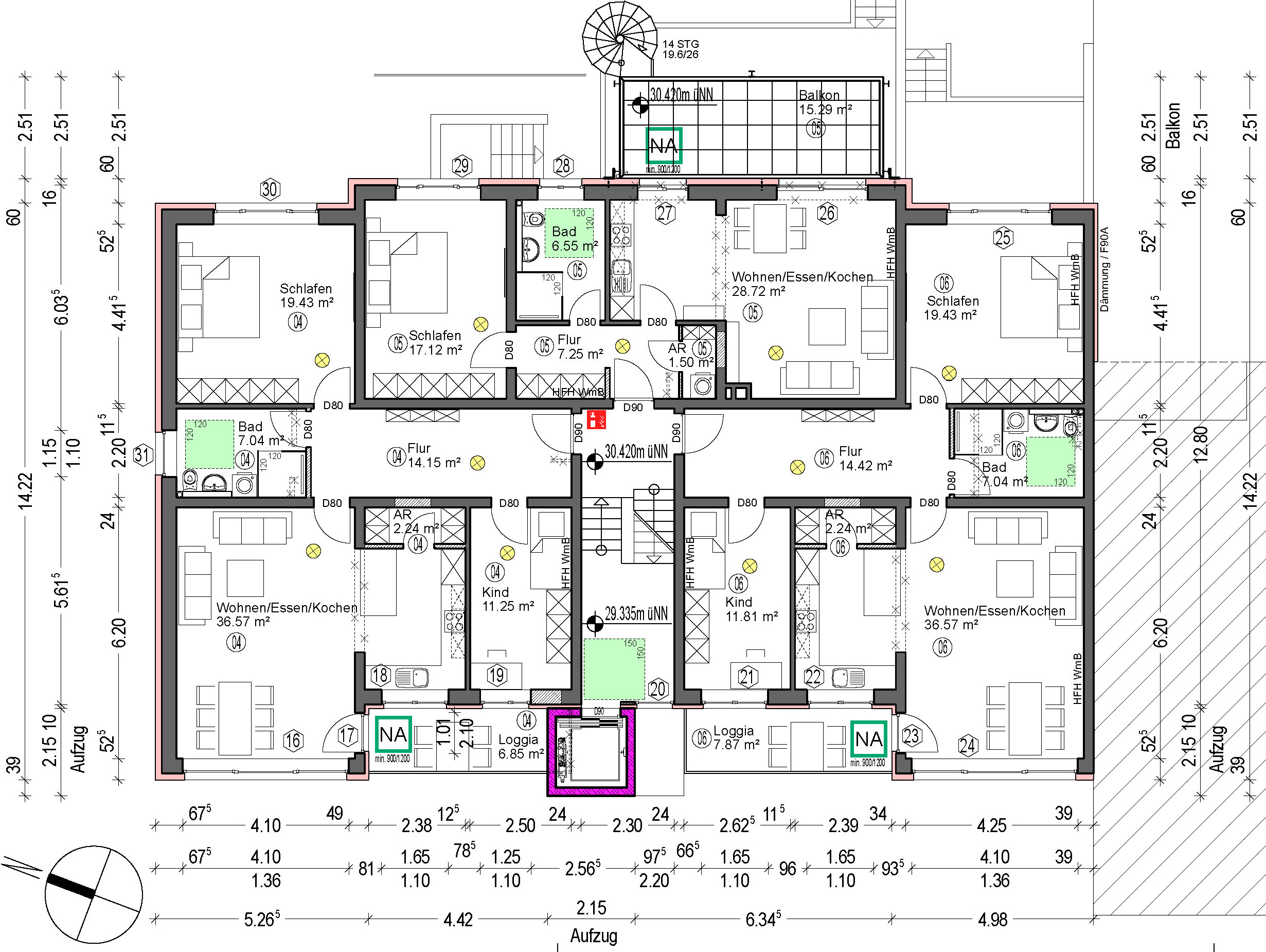
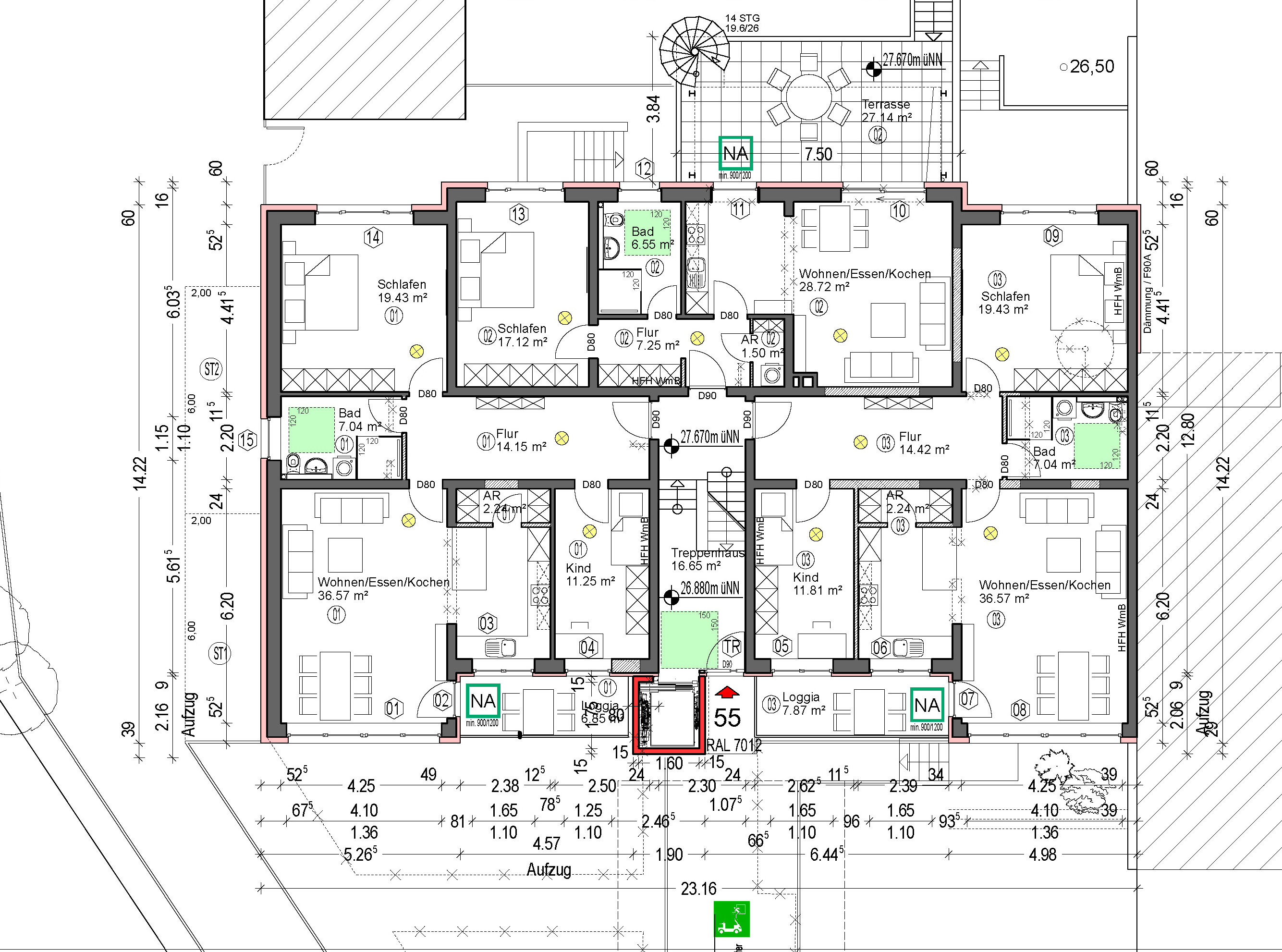
Auf dem großen Grundstück wird ein Gebäudebestand mit 15 Wohnungen in 4-geschossiger Bauweise aufwendig kernsaniert. Das Erdgeschoss, welcher z.Zt als Büroraum verwendet wird, wird zu dem Wohnraum ausgebaut und eine Staffelgeschoss errichtet. In jedem Geschoss befinden sich drei Wohnungen, welche von Treppenhaus mit Aufzug zu erreichen ist. Im Kellergeschoss soll die Hausanschlussraum, Wasch- und Trockenraum und Abstellräume für Kinderwagen und Fahrräder befinden.

Der Gebäudebestand wird nach der zurzeit gültigen Gebäudeenergiegesetz 2022 wärmetechnisch saniert, Ziel ist es diese Vorgabe um 45% zu verbessern, so dass nach KfW-Standard eine Energieeffizienz-Haus 55 entsteht.

Im Zuge der wärmetechnischen Sanierung ist vorgesehen, jede Wohnung hochwertig zu sanieren und zu modernisieren. Für die Erschließung der Wohnungen wird im Treppenhaus ein Aufzug für Barrierefreiheit errichtet und nach Hinten hin werden für jede Wohnung Balkone bzw. Terrassen errichtet. Zudem wird das Gebäude um einen Staffelgeschoss ergänzt sowie das Erdgeschoss zur Wohnnutzung ausgebaut. Die Außenanlage bekommt ein freundliches Erscheinungsbild.

Herzlich Willkommen in Ihrem neuen Zuhause!

Termin vereinbaren?

MEHR INFOS